Amber Residence

Живите в роскоши

Пяти этажное здание, комплекса класса «суперлюкс». По одной роскошной квартире, на каждом этаже, где все продумано до малейших деталей на самом современном уровне, с отделкой наивысшего стандарта, включая полы с подогревом. Среди преимуществ комплекса: открытые, просторные внутренние пространства с ультрасовременным техническим оборудованием и дизайном, с видами на море, которыми можно наслаждаться, не выходя из квартир.

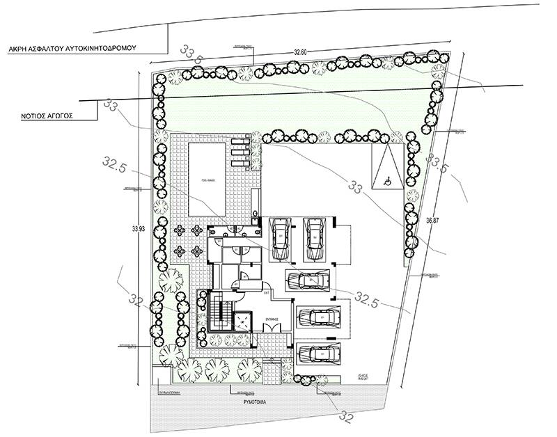
Великолепный общий бассейн, только для резидентов, крытая парковка, удобные кладовые для каждой квартиры и огороженная территория с детской игровой площадкой, для полного комфорта позволяющего жильцам наслаждаться всеми удобствами жизни на Кипре.

Amber Residence находится в центре самого оживленного туристического района Лимассола, всего в 350 метрах от сверкающих вод Средиземного моря. Поблизости от него расположены все необходимые объекты инфраструктуры, работающие круглосуточно: жильцы могут посетить находящиеся буквально в двух шагах рестораны мирового уровня с кухней разных стран и магазины.
Count Квартира No Спальни Крытая площадь (кв. м) Крытые веранды (кв. м) Общая крытая площадь (кв. м) Кладовая (кв. м) Крытая парковка Статус
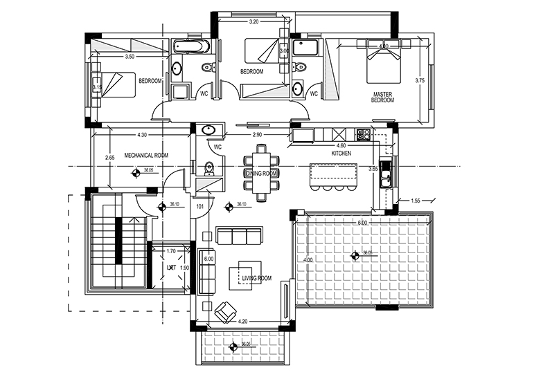
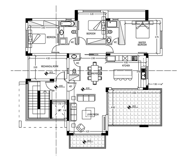
101 3 163 47 210 4 1 На продажу
201 3 163 47 210 4 1 На продажу
301 3 163 47 210 4 1 На продажу
401 3 163 47 210 4 1 На продажу
501 3 163 47 210 4 1 На продажу

Архитектурныe планы

 

Расположение на карте

Просмотреть фотографии

    Пожалуйста, заполните контактную форму и мы свяжемся с Вами в ближайшее время.

    Пожалуйста, введите номер Вашего телефона
    Мы не сохраняем ваши персональные данные. Мы используем эту информацию только, чтобы связаться с Вами, в ответ на Ваш запрос.


     

    52, Amathountos Avenue, 4532, Ayios Tychonas, Limassol-Cyprus Tel: +357 25 82 82 00 | Fax: +357 25 31 99 80
    Web Development by Website Bakers

    Мы используем куки-файлы для идентификации посещаемых страниц. Мы также обмениваемся информацией о вашем использовании нашего сайта в социальных сетях, в рекламах и системах аналитики, которы могут объединить данные с другой информацией, которую вы предоставили им или которую они собрали в результате использования вами их услуг. Просмотреть политику конфиденциальности